Od €275.000
Bungavillas Sol Fase II

Vyžádat si více informací

Včetně předvolby, např. +420 123 456 789

Bungavillas Sol Fase II | Alistora

Bungavillas Sol Fase II

San Fulgencio Alicante detached
Dokončeno
Od €275.000
1 / 50
/
3
Ložnice
3
Koupelny
109 m²
Zastavěná plocha
2023
Předání
Bazén Terasa Energie: B

Vzdálenosti

Pláž
5.0 km
Letiště
28.0 km
Golfové hřiště
10.0 km

Popis

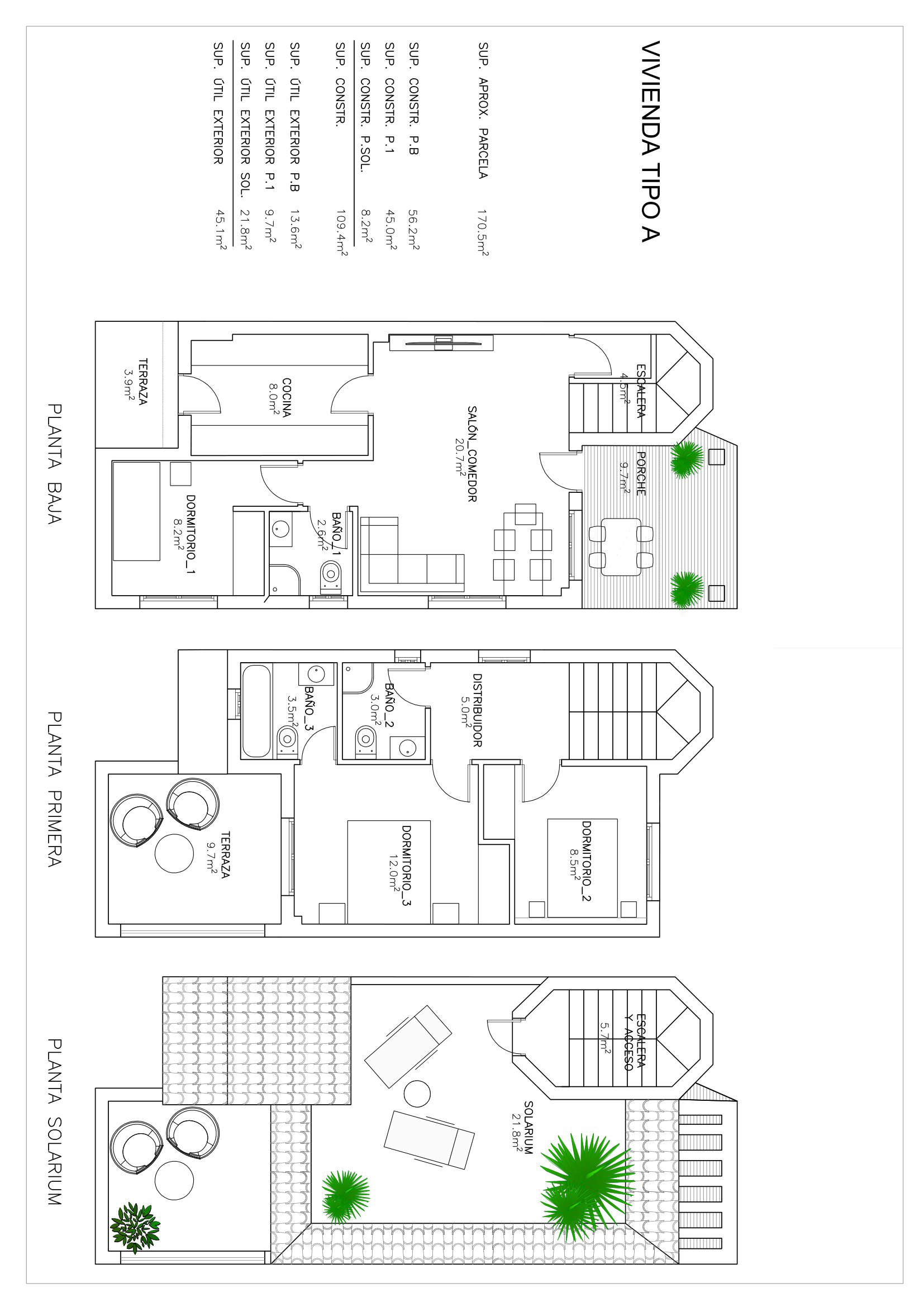
Nachází se v okouzlujícím městě San Fulgencio, tato exkluzivní nabídka nemovitostí se skládá ze tří samostatných domů. Tyto nemovitosti se vyznačují moderním a funkčním designem, ideální pro ty, kteří hledají domov v klidném a dobře propojeném prostředí. Blízkost k moři, pouhých 5 km, nabízí možnost užívat si středomořské pobřeží během několika minut. Navíc letiště je vzdáleno 28 km, což usnadňuje mezinárodní cestování. Domy jsou navrženy tak, aby poskytovaly maximální komfort, s vlastnostmi, které zajišťují vysoce kvalitní životní zkušenost.

EXTERIÉRY

Exteriéry těchto samostatných domů v San Fulgencio jsou navrženy tak, aby maximalizovaly požitek ze středomořského klimatu. Každá nemovitost má soukromou zahradu, ideální pro vytvoření osobního zeleného prostoru nebo pro venkovní aktivity. Navíc prostorné terasy umožňují maximální využití výhledů a okolí, poskytují ideální místo k relaxaci nebo zábavě hostů. Zařazení soukromého solária je výjimečnou vlastností, která nabízí další prostor pro opalování a užívání si panoramatických výhledů.

INTERIÉRY

Interiér těchto samostatných domů je pečlivě navržen tak, aby nabízel pohodlí a funkčnost. S třemi ložnicemi a třemi koupelnami je každá nemovitost vybavena tak, aby splňovala potřeby rodin nebo párů hledajících prostor a soukromí. Podlahy z porcelánové dlažby dodávají nádech elegance a snadno se udržují. Vestavěné skříně v ložnicích poskytují efektivní úložný prostor, udržují prostor uklizený a bez nepořádku. Dispozice zahrnuje garáž, která zajišťuje bezpečné parkování a další úložný prostor.

SPOLEČNÉ PROSTORY

Společné prostory této rezidence v San Fulgencio jsou navrženy tak, aby nabízely uvolněný a společenský životní styl. Obyvatelé si mohou užívat rozsáhlé zahradní plochy, ideální pro procházky nebo jen relaxaci na čerstvém vzduchu. Společný bazén je ideálním místem pro osvěžení během horkých letních dnů a pro setkávání se sousedy. Navíc společné solárium nabízí další prostor pro opalování a užívání si středomořského klimatu v klidném a bezpečném prostředí.

Vlastnosti

Společný bazén
Solárium
Zařízená kuchyně
Golf
Škola v blízkosti
Private parking: 2
Nemocnice v blízkosti
Výhled na město
Společná zahrada
Blízko moře

Dostupné jednotky

Typ Ložnice Zastavěná plocha Cena
Detached 3 109 m² €275.000 - €280.000 Zobrazit

FAQ

Jaký je cenový rozsah Bungavillas Sol Fase II?
Ceny v Bungavillas Sol Fase II v San Fulgencio začínají od €275.000 - €275.000.
Kdy bude Bungavillas Sol Fase II dokončen?
Očekávané dokončení Bungavillas Sol Fase II je v 2023.
Jak daleko je Bungavillas Sol Fase II od pláže?
Bungavillas Sol Fase II se nachází 5.0 km od nejbližší pláže.
Má Bungavillas Sol Fase II bazén?
Ano, Bungavillas Sol Fase II má bazén.
Kolik ložnic mají byty v Bungavillas Sol Fase II?
Byty v Bungavillas Sol Fase II mají od 3 do 3 ložnic.
Jaká je velikost bytů v Bungavillas Sol Fase II?
Zastavěná plocha se pohybuje od 109 do 109 m².

Lokalita

Want to see this project in person?

Plan a viewing trip and visit this project personally.

Plan viewing trip →

Máte zájem o tento projekt?

Zanechte své údaje a my vás spojíme s místním partnerem.

Včetně předvolby, např. +420 123 456 789

Vypočítejte si hypotéku

Měsíční splátka

Tento výpočet je orientační a nepředstavuje finanční nabídku.

Bezplatný průvodce: Koupě novostavby ve Španělsku

Stáhněte si náš kompletní průvodce s tipy, náklady a právním poradenstvím.