
Marea Interiors By Missoni - 3 Ložnice Byt na prodej v Buenas Noches
Buenas Noches
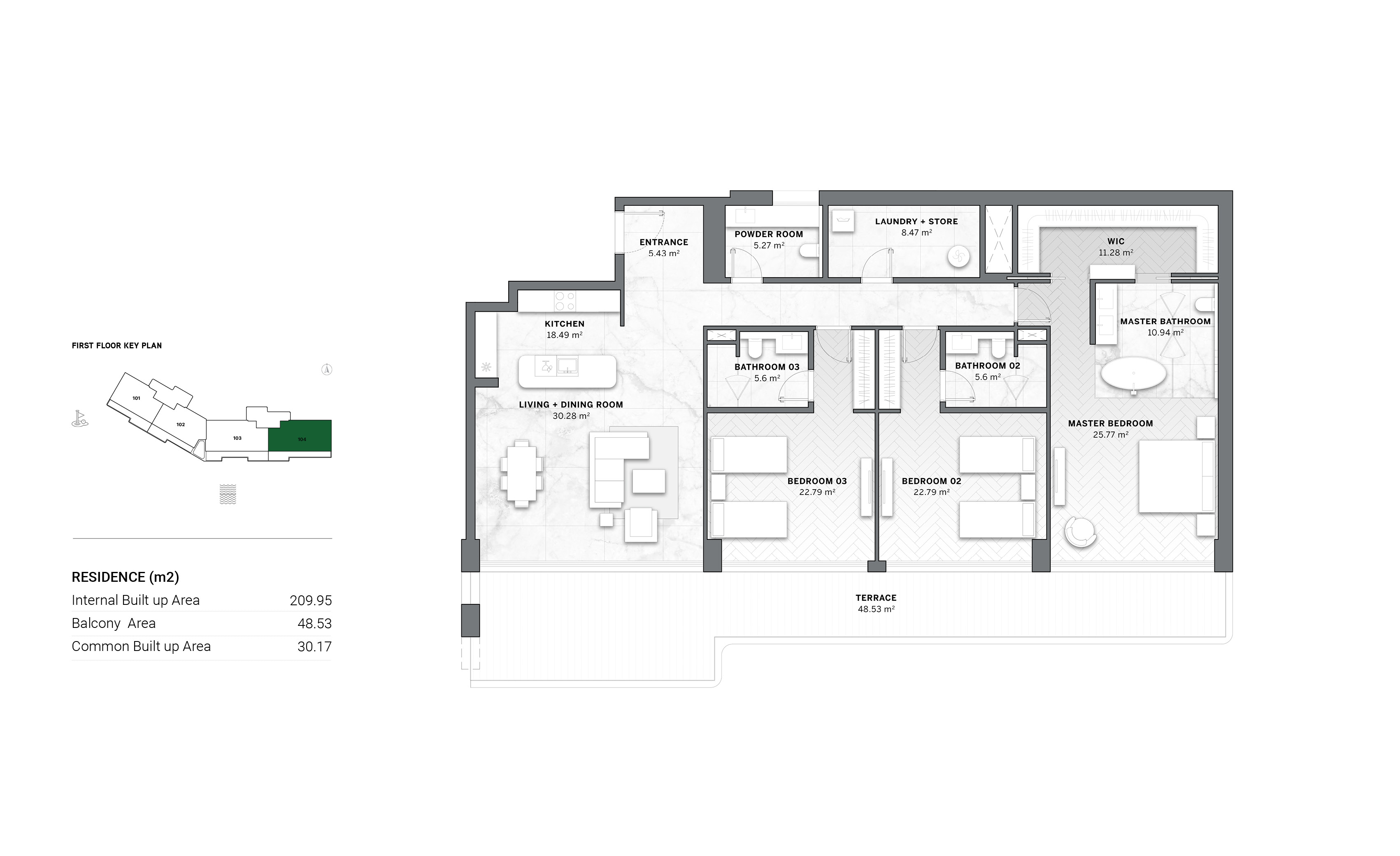
Dostupné Půdorysy
Popis
Luxusní rezidenční komunita ve Finca Cortesin, která nabízí harmonickou kombinaci vytříbeného bydlení v nedotčené krajině pobřeží Costa del Sol. Sofistikovaný moderní středomořský styl je založen na minimalistickém přístupu, jednoduchosti a čistotě linií. Moderní prvky a přírodní materiály vytvářejí vřelou a příjemnou atmosféru, kterou doplňuje měkké, teplé a přirozené osvětlení.
EXTERIÉRY
Panorama pobřežní nádhery. Marea s interiéry od Missoni nabízí úchvatný výhled na celé pobřeží Costa del Sol, které se táhne od Marbelly až po Gibraltar. Příroda v Miradas není jen kulisou, ale důležitou součástí architektury. Středomořská vegetace mění tyto byty v obytné prostředí, kde je vztah mezi interiérem a exteriérem nově interpretován novým a spontánním jazykem. Finca Cortesin s nádvořími plnými palem a voňavými středomořskými zahradami nabízí luxusní lázně, čtyři bazény, tenisové zázemí, velký plážový klub a vynikající stravování včetně restaurace oceněné michelinskou hvězdou.
INTERIÉRY
Tato exkluzivní uzavřená komunita nabízí rezidence se 2, 3 a 4 ložnicemi, soukromým vchodem a nepřetržitou bezpečnostní službou, která zajišťuje nejvyšší standard bezpečnosti a soukromí. Luxus jde ruku v ruce se zdravějším životním stylem. V rezortu Marea, jehož interiéry navrhla společnost Missoni, bylo wellness centrum speciálně navrženo a vybaveno tak, aby uspokojilo všechny milovníky fitness a zároveň umožnilo relaxaci s jedinečným výhledem na pobřeží.
SPOLEČNÉ PROSTORY
PŘIPRAVTE SE NA ROZKVET Nebojte se spojit se svou vnitřní přírodou a projděte se elegantními terasovitými zahradami, které jsou svěže osázené a vkusně vyzdobené firmou Missoni.
Vlastnosti
Umístění
Mapa zobrazuje přibližnou polohu
Odesláním tohoto formuláře souhlasíte s našimi zásadami ochrany osobních údajů.
Jiné dostupné jednotky v tomto projektu
3 jednotek dostupných v tomto vývoji

Apartment in Buenas Noches
€ 3.225.810

Groundfloor in Buenas Noches
€ 1.455.737

Apartment in Buenas Noches
€ 3.161.616


