
Residencial Los Olivos del Mar II - 3 Ložnice Samostatný dům na prodej v Los Alcázares
Los Alcázares
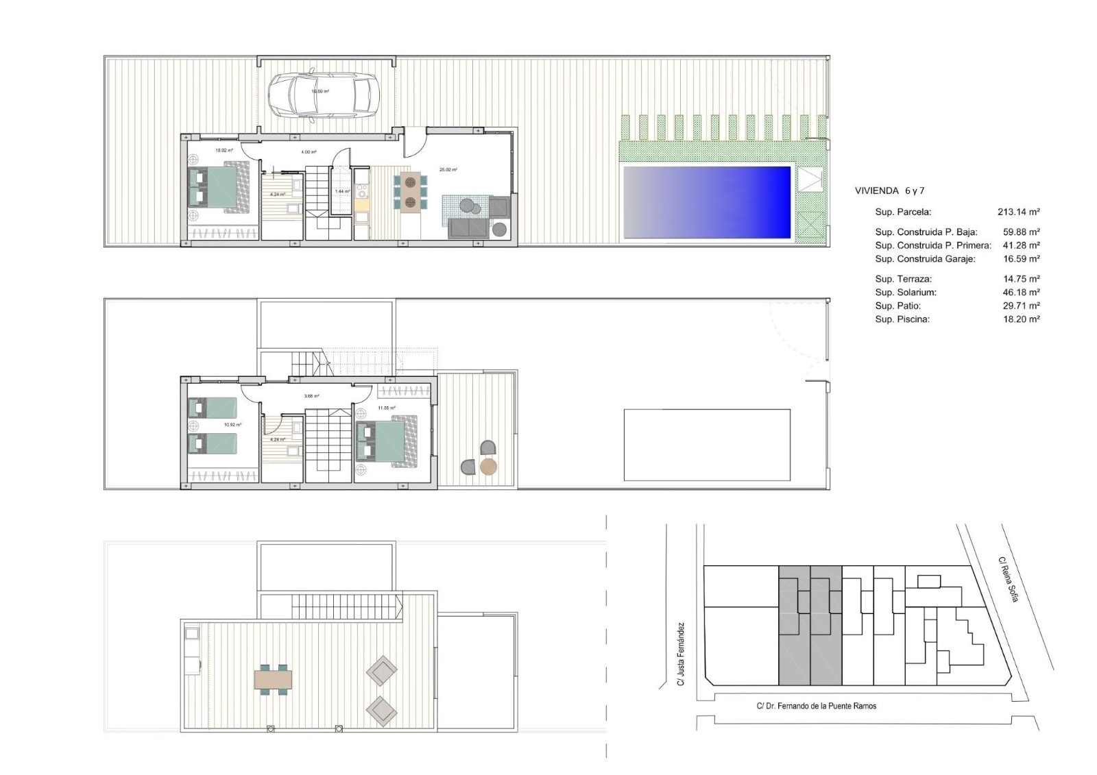
Dostupné Půdorysy
Popis
Nachází se v okouzlujícím městečku Los Alcázares, tato exkluzivní kolekce 9 samostatných domů nabízí privilegované prostředí pro ty, kteří hledají domov na pobřeží. S pouhým 1 km vzdáleností od moře jsou tyto nemovitosti ideální pro užívání si mořského vánku a středomořského životního stylu. Navíc letiště je vzdáleno jen 30 km, což usnadňuje přístup k mezinárodním spojům. Domy jsou navrženy tak, aby poskytovaly pohodlí a funkčnost, s dispozicí zahrnující 3 ložnice a 2 koupelny, přizpůsobující se potřebám rodin a párů, které hledají útulný a moderní prostor.
EXTERIÉRY
Exteriéry těchto samostatných domů jsou navrženy tak, aby maximalizovaly využití slunečného klimatu Los Alcázares. Každá nemovitost má soukromou zahradu, ideální pro vytvoření osobní oázy venku. Terasa nabízí další prostor pro relaxaci nebo zábavu hostů, zatímco solárium je ideální pro opalování v soukromí. Navíc každý dům má soukromý bazén, který poskytuje osvěžující místo pro užívání si během horkých letních dnů. Blízkost k moři umožňuje užívat si panoramatické výhledy a rychlý přístup k místním plážím.
INTERIÉRY
Interiér těchto samostatných domů v Los Alcázares je navržen s důrazem na detail a funkčnost. Podlahy z porcelánové dlažby dodávají eleganci a snadno se udržují. Kuchyně je vybavena moderními spotřebiči, což usnadňuje každodenní život. Vestavěné skříně v ložnicích nabízejí dostatek úložného prostoru, udržují pořádek a organizaci. Navíc domy mají předinstalaci klimatizace, což zajišťuje komfort po celý rok. Dispozice se 3 ložnicemi a 2 koupelnami je navržena tak, aby poskytovala útulný a praktický prostor pro celou rodinu.
Vlastnosti
Umístění
Mapa zobrazuje přibližnou polohu
Odesláním tohoto formuláře souhlasíte s našimi zásadami ochrany osobních údajů.
Jiné dostupné jednotky v tomto projektu
1 jednotka


