
Villas en Jumilla - 3 Dormitorios Casa unifamiliar en venta en Torre del Rico
Torre del Rico
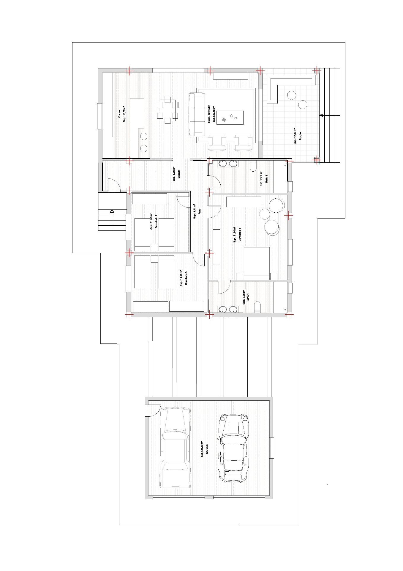
Planos Disponibles
Descripción
Ubicado en el encantador entorno de Torre del Rico, este chalet independiente ofrece una combinación perfecta de privacidad y confort. Diseñado para quienes buscan un hogar exclusivo, cuenta con una distribución que maximiza el espacio y la funcionalidad. La propiedad se caracteriza por su estilo contemporáneo y acabados de alta calidad, proporcionando un ambiente acogedor y elegante. Con una construcción que prioriza la comodidad, este chalet es ideal para familias que desean disfrutar de un entorno tranquilo y seguro.
EXTERIORES
El exterior de esta propiedad es un verdadero oasis de tranquilidad. Dispone de un jardín privado que ofrece un espacio perfecto para el esparcimiento al aire libre. La terraza es ideal para disfrutar de las vistas y del clima mediterráneo, convirtiéndose en el lugar perfecto para reuniones familiares o simplemente para relajarse. Además, cuenta con una piscina privada, proporcionando un toque de lujo y exclusividad que eleva la experiencia de vivir en este chalet. El acceso al garaje privado garantiza comodidad y seguridad para los vehículos.
INTERIORES
El interior del chalet está diseñado para ofrecer el máximo confort y funcionalidad. Con tres dormitorios, cada uno equipado con armarios empotrados, se asegura un espacio amplio y organizado. Los dos baños están diseñados con un estilo moderno y funcional. La cocina está equipada con electrodomésticos de alta calidad, facilitando las tareas diarias. El suelo de gres porcelánico añade un toque de elegancia y durabilidad a los espacios. Además, la preinstalación de aire acondicionado permite mantener una temperatura agradable durante todo el año.
Características
Ubicación
El mapa muestra una ubicación aproximada
Al enviar este formulario, aceptas nuestra política de privacidad.


