TERENY ZEWNĘTRZNE

Przestrzenie zewnętrzne tych domów zostały zaprojektowane tak, aby oferować miejsce do relaksu i cieszenia się na świeżym powietrzu. Każdy bungalow posiada prywatny ogród, idealny do korzystania z klimatu śródziemnomorskiego. Dodatkowo, tarasy i solaria zapewniają dodatkową przestrzeń do wypoczynku, pozwalając mieszkańcom cieszyć się niezakłóconymi widokami i chwilami spokoju. Obecność pergoli dodaje elegancji i funkcjonalności, oferując cień i styl przestrzeniom zewnętrznym.

POMIESZCZENIA WEWNĘTRZNE

Wnętrza bungalowów zaprojektowano z dbałością o szczegóły, wprowadzając nowoczesne i praktyczne rozwiązania. Podłogi z gresu porcelanowego zapewniają eleganckie i trwałe wykończenie, a elektryczne rolety i zintegrowane urządzenia ułatwiają codzienne życie. Wbudowane szafy oferują efektywne przechowywanie, a jacuzzi dodaje odrobinę luksusu i relaksu. Układ obejmuje dwie sypialnie i dwie łazienki, a każda przestrzeń jest zoptymalizowana pod kątem komfortu i prywatności.

OBSZARY WSPÓLNE

Obszary wspólne kompleksu mieszkalnego zostały zaprojektowane, aby promować wspólne życie i przyjemność mieszkańców. Dobrze utrzymane tereny zielone zapewniają zielone i relaksujące otoczenie, idealne do spacerów lub cieszenia się naturą. Wspólny basen jest idealny do ochłody w ciepłe letnie dni, a wspólny garaż oferuje wygodę i bezpieczeństwo dla pojazdów mieszkańców.

ROJALES

Rojales w prowincji Alicante, to urocza miejscowość położona wzdłuż rzeki Segura i znana z bogatej historii rolnictwa. Chociaż nie jest to masowe miejsce turystyczne, jego atrakcyjność polega na spokojnej atmosferze i bliskości popularnych obszarów przybrzeżnych. Turystyka w Rojales koncentruje się na dziedzictwie kulturowym, takim jak jaskinie Rodeo i jego naturalne otoczenie, idealne na spacery i wycieczki. Bliskość plaż Costa Blanca, takich jak Guardamar del Segura, dodaje atrakcyjności regionowi. Styl życia w Rojales jest spokojny i zakorzeniony w tradycji rolniczej. Mieszkańcy cenią sobie spokój, wspólne życie i lokalne uroczystości. Gastronomia charakteryzuje się regionalnymi potrawami z wpływami śródziemnomorskimi i świeżymi lokalnymi produktami. Rojales oferuje spokojną, wiejską atmosferę dla tych, którzy szukają spokojnego życia w naturalnym środowisku w pobliżu wybrzeża Morza Śródziemnego.

","image":["https://medianewbuild.com/file/hh-media-bucket/developments_v2/75352096/logo.jpg","https://medianewbuild.com/file/hh-media-bucket/developments_v2/75352096/media/images/commonareas/1.jpg","https://medianewbuild.com/file/hh-media-bucket/developments_v2/75352096/media/images/commonareas/10.jpg","https://medianewbuild.com/file/hh-media-bucket/developments_v2/75352096/media/images/commonareas/11.jpg","https://medianewbuild.com/file/hh-media-bucket/developments_v2/75352096/media/images/commonareas/12.jpg","https://medianewbuild.com/file/hh-media-bucket/developments_v2/75352096/media/images/commonareas/13.jpg","https://medianewbuild.com/file/hh-media-bucket/developments_v2/75352096/media/images/commonareas/14.jpg","https://medianewbuild.com/file/hh-media-bucket/developments_v2/75352096/media/images/commonareas/15.jpg","https://medianewbuild.com/file/hh-media-bucket/developments_v2/75352096/media/images/commonareas/2.jpg","https://medianewbuild.com/file/hh-media-bucket/developments_v2/75352096/media/images/commonareas/3.jpg","https://medianewbuild.com/file/hh-media-bucket/developments_v2/75352096/media/images/commonareas/4.jpg","https://medianewbuild.com/file/hh-media-bucket/developments_v2/75352096/media/images/commonareas/5.jpg","https://medianewbuild.com/file/hh-media-bucket/developments_v2/75352096/media/images/commonareas/6.jpg","https://medianewbuild.com/file/hh-media-bucket/developments_v2/75352096/media/images/commonareas/7.jpg","https://medianewbuild.com/file/hh-media-bucket/developments_v2/75352096/media/images/commonareas/8.jpg","https://medianewbuild.com/file/hh-media-bucket/developments_v2/75352096/media/images/commonareas/9.jpg","https://medianewbuild.com/file/hh-media-bucket/developments_v2/75352096/media/images/indoor/1.jpg","https://medianewbuild.com/file/hh-media-bucket/developments_v2/75352096/media/images/indoor/10.jpg","https://medianewbuild.com/file/hh-media-bucket/developments_v2/75352096/media/images/indoor/11.jpg","https://medianewbuild.com/file/hh-media-bucket/developments_v2/75352096/media/images/indoor/12.jpg","https://medianewbuild.com/file/hh-media-bucket/developments_v2/75352096/media/images/indoor/2.jpg","https://medianewbuild.com/file/hh-media-bucket/developments_v2/75352096/media/images/indoor/3.jpg","https://medianewbuild.com/file/hh-media-bucket/developments_v2/75352096/media/images/indoor/4.jpg","https://medianewbuild.com/file/hh-media-bucket/developments_v2/75352096/media/images/indoor/5.jpg","https://medianewbuild.com/file/hh-media-bucket/developments_v2/75352096/media/images/indoor/6.jpg","https://medianewbuild.com/file/hh-media-bucket/developments_v2/75352096/media/images/indoor/7.jpg","https://medianewbuild.com/file/hh-media-bucket/developments_v2/75352096/media/images/indoor/8.jpg","https://medianewbuild.com/file/hh-media-bucket/developments_v2/75352096/media/images/indoor/9.jpg","https://medianewbuild.com/file/hh-media-bucket/developments_v2/75352096/media/images/outdoor/1.jpg","https://medianewbuild.com/file/hh-media-bucket/developments_v2/75352096/media/images/outdoor/10.jpg","https://medianewbuild.com/file/hh-media-bucket/developments_v2/75352096/media/images/outdoor/11.jpg","https://medianewbuild.com/file/hh-media-bucket/developments_v2/75352096/media/images/outdoor/12.jpg","https://medianewbuild.com/file/hh-media-bucket/developments_v2/75352096/media/images/outdoor/13.jpg","https://medianewbuild.com/file/hh-media-bucket/developments_v2/75352096/media/images/outdoor/14.jpg","https://medianewbuild.com/file/hh-media-bucket/developments_v2/75352096/media/images/outdoor/15.jpg","https://medianewbuild.com/file/hh-media-bucket/developments_v2/75352096/media/images/outdoor/2.jpg","https://medianewbuild.com/file/hh-media-bucket/developments_v2/75352096/media/images/outdoor/3.jpg","https://medianewbuild.com/file/hh-media-bucket/developments_v2/75352096/media/images/outdoor/4.jpg","https://medianewbuild.com/file/hh-media-bucket/developments_v2/75352096/media/images/outdoor/5.jpg","https://medianewbuild.com/file/hh-media-bucket/developments_v2/75352096/media/images/outdoor/6.jpg","https://medianewbuild.com/file/hh-media-bucket/developments_v2/75352096/media/images/outdoor/7.jpg","https://medianewbuild.com/file/hh-media-bucket/developments_v2/75352096/media/images/outdoor/8.jpg","https://medianewbuild.com/file/hh-media-bucket/developments_v2/75352096/media/images/outdoor/9.jpg"],"sku":"75352096-01","brand":{"@type":"Organization","name":"Alistora Real Estate"},"offers":{"@type":"Offer","price":321000,"priceCurrency":"EUR","availability":"https://schema.org/InStock","url":"https://alistora.com/property/75352096-01","seller":{"@type":"Organization","name":"Alistora Real Estate","url":"https://alistora.com"},"validThrough":"2026-05-29T16:58:06.406Z","priceValidUntil":"2026-05-29"},"aggregateRating":{"@type":"AggregateRating","ratingValue":4.5,"reviewCount":127,"bestRating":5,"worstRating":1},"category":"Real Estate"},{"@type":"RealEstateListing","name":"Lisa - Bungalow Ostatnie piętro (solarium) w Rojales","description":"

Położony w urokliwej miejscowości Rojales, ten kompleks mieszkalny oferuje wybór 18 bungalowów, podzielonych na opcje high-bungalow i low-bungalow. Lokalizacja jest idealna dla tych, którzy szukają równowagi między spokojem a dostępnością, z morzem zaledwie 4 km i lotniskiem 40 km, co ułatwia zarówno wypoczynek, jak i podróże. Każda nieruchomość jest zaprojektowana tak, aby maksymalizować komfort i funkcjonalność, zapewniając, że każdy mieszkaniec może cieszyć się przytulnym i dobrze wyposażonym domem.

TERENY ZEWNĘTRZNE

Przestrzenie zewnętrzne tych domów zostały zaprojektowane tak, aby oferować miejsce do relaksu i cieszenia się na świeżym powietrzu. Każdy bungalow posiada prywatny ogród, idealny do korzystania z klimatu śródziemnomorskiego. Dodatkowo, tarasy i solaria zapewniają dodatkową przestrzeń do wypoczynku, pozwalając mieszkańcom cieszyć się niezakłóconymi widokami i chwilami spokoju. Obecność pergoli dodaje elegancji i funkcjonalności, oferując cień i styl przestrzeniom zewnętrznym.

POMIESZCZENIA WEWNĘTRZNE

Wnętrza bungalowów zaprojektowano z dbałością o szczegóły, wprowadzając nowoczesne i praktyczne rozwiązania. Podłogi z gresu porcelanowego zapewniają eleganckie i trwałe wykończenie, a elektryczne rolety i zintegrowane urządzenia ułatwiają codzienne życie. Wbudowane szafy oferują efektywne przechowywanie, a jacuzzi dodaje odrobinę luksusu i relaksu. Układ obejmuje dwie sypialnie i dwie łazienki, a każda przestrzeń jest zoptymalizowana pod kątem komfortu i prywatności.

OBSZARY WSPÓLNE

Obszary wspólne kompleksu mieszkalnego zostały zaprojektowane, aby promować wspólne życie i przyjemność mieszkańców. Dobrze utrzymane tereny zielone zapewniają zielone i relaksujące otoczenie, idealne do spacerów lub cieszenia się naturą. Wspólny basen jest idealny do ochłody w ciepłe letnie dni, a wspólny garaż oferuje wygodę i bezpieczeństwo dla pojazdów mieszkańców.

ROJALES

Rojales w prowincji Alicante, to urocza miejscowość położona wzdłuż rzeki Segura i znana z bogatej historii rolnictwa. Chociaż nie jest to masowe miejsce turystyczne, jego atrakcyjność polega na spokojnej atmosferze i bliskości popularnych obszarów przybrzeżnych. Turystyka w Rojales koncentruje się na dziedzictwie kulturowym, takim jak jaskinie Rodeo i jego naturalne otoczenie, idealne na spacery i wycieczki. Bliskość plaż Costa Blanca, takich jak Guardamar del Segura, dodaje atrakcyjności regionowi. Styl życia w Rojales jest spokojny i zakorzeniony w tradycji rolniczej. Mieszkańcy cenią sobie spokój, wspólne życie i lokalne uroczystości. Gastronomia charakteryzuje się regionalnymi potrawami z wpływami śródziemnomorskimi i świeżymi lokalnymi produktami. Rojales oferuje spokojną, wiejską atmosferę dla tych, którzy szukają spokojnego życia w naturalnym środowisku w pobliżu wybrzeża Morza Śródziemnego.

","url":"https://alistora.com/property/75352096-01","image":["https://medianewbuild.com/file/hh-media-bucket/developments_v2/75352096/logo.jpg","https://medianewbuild.com/file/hh-media-bucket/developments_v2/75352096/media/images/commonareas/1.jpg","https://medianewbuild.com/file/hh-media-bucket/developments_v2/75352096/media/images/commonareas/10.jpg","https://medianewbuild.com/file/hh-media-bucket/developments_v2/75352096/media/images/commonareas/11.jpg","https://medianewbuild.com/file/hh-media-bucket/developments_v2/75352096/media/images/commonareas/12.jpg","https://medianewbuild.com/file/hh-media-bucket/developments_v2/75352096/media/images/commonareas/13.jpg","https://medianewbuild.com/file/hh-media-bucket/developments_v2/75352096/media/images/commonareas/14.jpg","https://medianewbuild.com/file/hh-media-bucket/developments_v2/75352096/media/images/commonareas/15.jpg","https://medianewbuild.com/file/hh-media-bucket/developments_v2/75352096/media/images/commonareas/2.jpg","https://medianewbuild.com/file/hh-media-bucket/developments_v2/75352096/media/images/commonareas/3.jpg","https://medianewbuild.com/file/hh-media-bucket/developments_v2/75352096/media/images/commonareas/4.jpg","https://medianewbuild.com/file/hh-media-bucket/developments_v2/75352096/media/images/commonareas/5.jpg","https://medianewbuild.com/file/hh-media-bucket/developments_v2/75352096/media/images/commonareas/6.jpg","https://medianewbuild.com/file/hh-media-bucket/developments_v2/75352096/media/images/commonareas/7.jpg","https://medianewbuild.com/file/hh-media-bucket/developments_v2/75352096/media/images/commonareas/8.jpg","https://medianewbuild.com/file/hh-media-bucket/developments_v2/75352096/media/images/commonareas/9.jpg","https://medianewbuild.com/file/hh-media-bucket/developments_v2/75352096/media/images/indoor/1.jpg","https://medianewbuild.com/file/hh-media-bucket/developments_v2/75352096/media/images/indoor/10.jpg","https://medianewbuild.com/file/hh-media-bucket/developments_v2/75352096/media/images/indoor/11.jpg","https://medianewbuild.com/file/hh-media-bucket/developments_v2/75352096/media/images/indoor/12.jpg","https://medianewbuild.com/file/hh-media-bucket/developments_v2/75352096/media/images/indoor/2.jpg","https://medianewbuild.com/file/hh-media-bucket/developments_v2/75352096/media/images/indoor/3.jpg","https://medianewbuild.com/file/hh-media-bucket/developments_v2/75352096/media/images/indoor/4.jpg","https://medianewbuild.com/file/hh-media-bucket/developments_v2/75352096/media/images/indoor/5.jpg","https://medianewbuild.com/file/hh-media-bucket/developments_v2/75352096/media/images/indoor/6.jpg","https://medianewbuild.com/file/hh-media-bucket/developments_v2/75352096/media/images/indoor/7.jpg","https://medianewbuild.com/file/hh-media-bucket/developments_v2/75352096/media/images/indoor/8.jpg","https://medianewbuild.com/file/hh-media-bucket/developments_v2/75352096/media/images/indoor/9.jpg","https://medianewbuild.com/file/hh-media-bucket/developments_v2/75352096/media/images/outdoor/1.jpg","https://medianewbuild.com/file/hh-media-bucket/developments_v2/75352096/media/images/outdoor/10.jpg","https://medianewbuild.com/file/hh-media-bucket/developments_v2/75352096/media/images/outdoor/11.jpg","https://medianewbuild.com/file/hh-media-bucket/developments_v2/75352096/media/images/outdoor/12.jpg","https://medianewbuild.com/file/hh-media-bucket/developments_v2/75352096/media/images/outdoor/13.jpg","https://medianewbuild.com/file/hh-media-bucket/developments_v2/75352096/media/images/outdoor/14.jpg","https://medianewbuild.com/file/hh-media-bucket/developments_v2/75352096/media/images/outdoor/15.jpg","https://medianewbuild.com/file/hh-media-bucket/developments_v2/75352096/media/images/outdoor/2.jpg","https://medianewbuild.com/file/hh-media-bucket/developments_v2/75352096/media/images/outdoor/3.jpg","https://medianewbuild.com/file/hh-media-bucket/developments_v2/75352096/media/images/outdoor/4.jpg","https://medianewbuild.com/file/hh-media-bucket/developments_v2/75352096/media/images/outdoor/5.jpg","https://medianewbuild.com/file/hh-media-bucket/developments_v2/75352096/media/images/outdoor/6.jpg","https://medianewbuild.com/file/hh-media-bucket/developments_v2/75352096/media/images/outdoor/7.jpg","https://medianewbuild.com/file/hh-media-bucket/developments_v2/75352096/media/images/outdoor/8.jpg","https://medianewbuild.com/file/hh-media-bucket/developments_v2/75352096/media/images/outdoor/9.jpg"],"offers":{"@type":"Offer","price":321000,"priceCurrency":"EUR","availability":"https://schema.org/InStock","validFrom":"2026-02-28"},"address":{"@type":"PostalAddress","addressLocality":"Rojales","addressRegion":"Alicante","addressCountry":"ES"},"floorSize":{"@type":"QuantitativeValue","value":88,"unitCode":"MTK"},"numberOfBedrooms":2,"numberOfBathroomsTotal":2,"yearBuilt":2026,"amenityFeature":[{"@type":"LocationFeatureSpecification","name":"Hospital","value":true},{"@type":"LocationFeatureSpecification","name":"Green areas","value":true},{"@type":"LocationFeatureSpecification","name":"Kitchen: furnished+appliances","value":true},{"@type":"LocationFeatureSpecification","name":"Community garden","value":true},{"@type":"LocationFeatureSpecification","name":"Near sea","value":true},{"@type":"LocationFeatureSpecification","name":"Built-in cabinets","value":true},{"@type":"LocationFeatureSpecification","name":"Community pool","value":true},{"@type":"LocationFeatureSpecification","name":"Parking","value":true},{"@type":"LocationFeatureSpecification","name":"Solarium","value":true},{"@type":"LocationFeatureSpecification","name":"Private garage: 1","value":true},{"@type":"LocationFeatureSpecification","name":"Community garage","value":true},{"@type":"LocationFeatureSpecification","name":"Private parking: 1","value":true},{"@type":"LocationFeatureSpecification","name":"School","value":true},{"@type":"LocationFeatureSpecification","name":"Golf","value":true}],"geo":{"@type":"GeoCoordinates","latitude":"38.06059639636512","longitude":"-0.7066730038820489"}}]}
Powrót do Projektu
Hoge bungalow (solarium) in Rojales - Image 1
+39

Lisa - 2 Sypialnie High-bungalow na sprzedaż w Rojales

€ 321.000

Rojales

Ref: 75352096-01
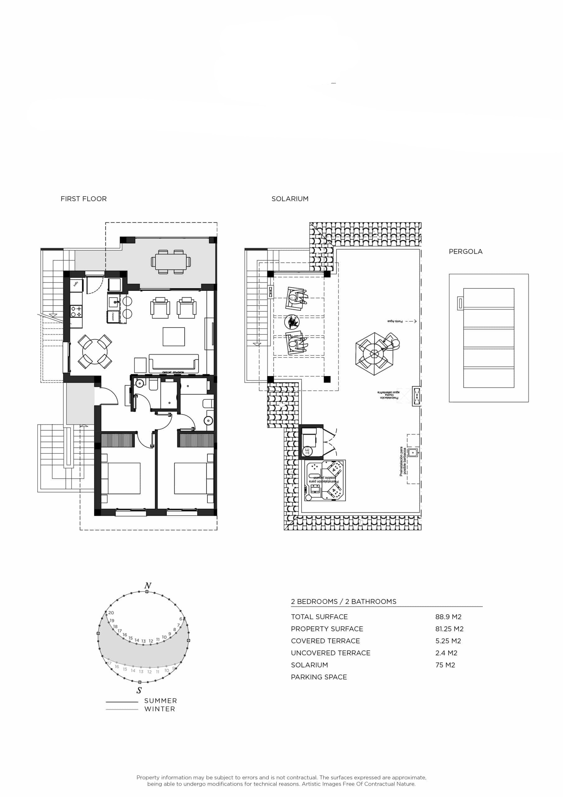
2
Sypialnie
2
Łazienki
88m²
Powierzchnia mieszkalna
High-bungalow
Typ
marzec 2026
Wkrótce oddanie

Dostępne Plany Pięter

Opis

Położony w urokliwej miejscowości Rojales, ten kompleks mieszkalny oferuje wybór 18 bungalowów, podzielonych na opcje high-bungalow i low-bungalow. Lokalizacja jest idealna dla tych, którzy szukają równowagi między spokojem a dostępnością, z morzem zaledwie 4 km i lotniskiem 40 km, co ułatwia zarówno wypoczynek, jak i podróże. Każda nieruchomość jest zaprojektowana tak, aby maksymalizować komfort i funkcjonalność, zapewniając, że każdy mieszkaniec może cieszyć się przytulnym i dobrze wyposażonym domem.

TERENY ZEWNĘTRZNE

Przestrzenie zewnętrzne tych domów zostały zaprojektowane tak, aby oferować miejsce do relaksu i cieszenia się na świeżym powietrzu. Każdy bungalow posiada prywatny ogród, idealny do korzystania z klimatu śródziemnomorskiego. Dodatkowo, tarasy i solaria zapewniają dodatkową przestrzeń do wypoczynku, pozwalając mieszkańcom cieszyć się niezakłóconymi widokami i chwilami spokoju. Obecność pergoli dodaje elegancji i funkcjonalności, oferując cień i styl przestrzeniom zewnętrznym.

POMIESZCZENIA WEWNĘTRZNE

Wnętrza bungalowów zaprojektowano z dbałością o szczegóły, wprowadzając nowoczesne i praktyczne rozwiązania. Podłogi z gresu porcelanowego zapewniają eleganckie i trwałe wykończenie, a elektryczne rolety i zintegrowane urządzenia ułatwiają codzienne życie. Wbudowane szafy oferują efektywne przechowywanie, a jacuzzi dodaje odrobinę luksusu i relaksu. Układ obejmuje dwie sypialnie i dwie łazienki, a każda przestrzeń jest zoptymalizowana pod kątem komfortu i prywatności.

OBSZARY WSPÓLNE

Obszary wspólne kompleksu mieszkalnego zostały zaprojektowane, aby promować wspólne życie i przyjemność mieszkańców. Dobrze utrzymane tereny zielone zapewniają zielone i relaksujące otoczenie, idealne do spacerów lub cieszenia się naturą. Wspólny basen jest idealny do ochłody w ciepłe letnie dni, a wspólny garaż oferuje wygodę i bezpieczeństwo dla pojazdów mieszkańców.

ROJALES

Rojales w prowincji Alicante, to urocza miejscowość położona wzdłuż rzeki Segura i znana z bogatej historii rolnictwa. Chociaż nie jest to masowe miejsce turystyczne, jego atrakcyjność polega na spokojnej atmosferze i bliskości popularnych obszarów przybrzeżnych. Turystyka w Rojales koncentruje się na dziedzictwie kulturowym, takim jak jaskinie Rodeo i jego naturalne otoczenie, idealne na spacery i wycieczki. Bliskość plaż Costa Blanca, takich jak Guardamar del Segura, dodaje atrakcyjności regionowi. Styl życia w Rojales jest spokojny i zakorzeniony w tradycji rolniczej. Mieszkańcy cenią sobie spokój, wspólne życie i lokalne uroczystości. Gastronomia charakteryzuje się regionalnymi potrawami z wpływami śródziemnomorskimi i świeżymi lokalnymi produktami. Rojales oferuje spokojną, wiejską atmosferę dla tych, którzy szukają spokojnego życia w naturalnym środowisku w pobliżu wybrzeża Morza Śródziemnego.

Funkcje

Hospital
Green areas
Kitchen: furnished+appliances
Community garden
Near sea
Built-in cabinets
Community pool
Parking

Lokalizacja

Mapa pokazuje przybliżoną lokalizację

Kontakt
Zainteresowany tą nieruchomością? Skontaktuj się z nami po więcej szczegółów.

Wysyłając ten formularz, zgadzasz się z naszą polityką prywatności.

Broszura Nieruchomości