
Pebbles Villas Mimosa 36 - 3 Slaapkamers Villa te koop in Las Colinas Golf
Las Colinas Golf
Beschikbare vloerplannen
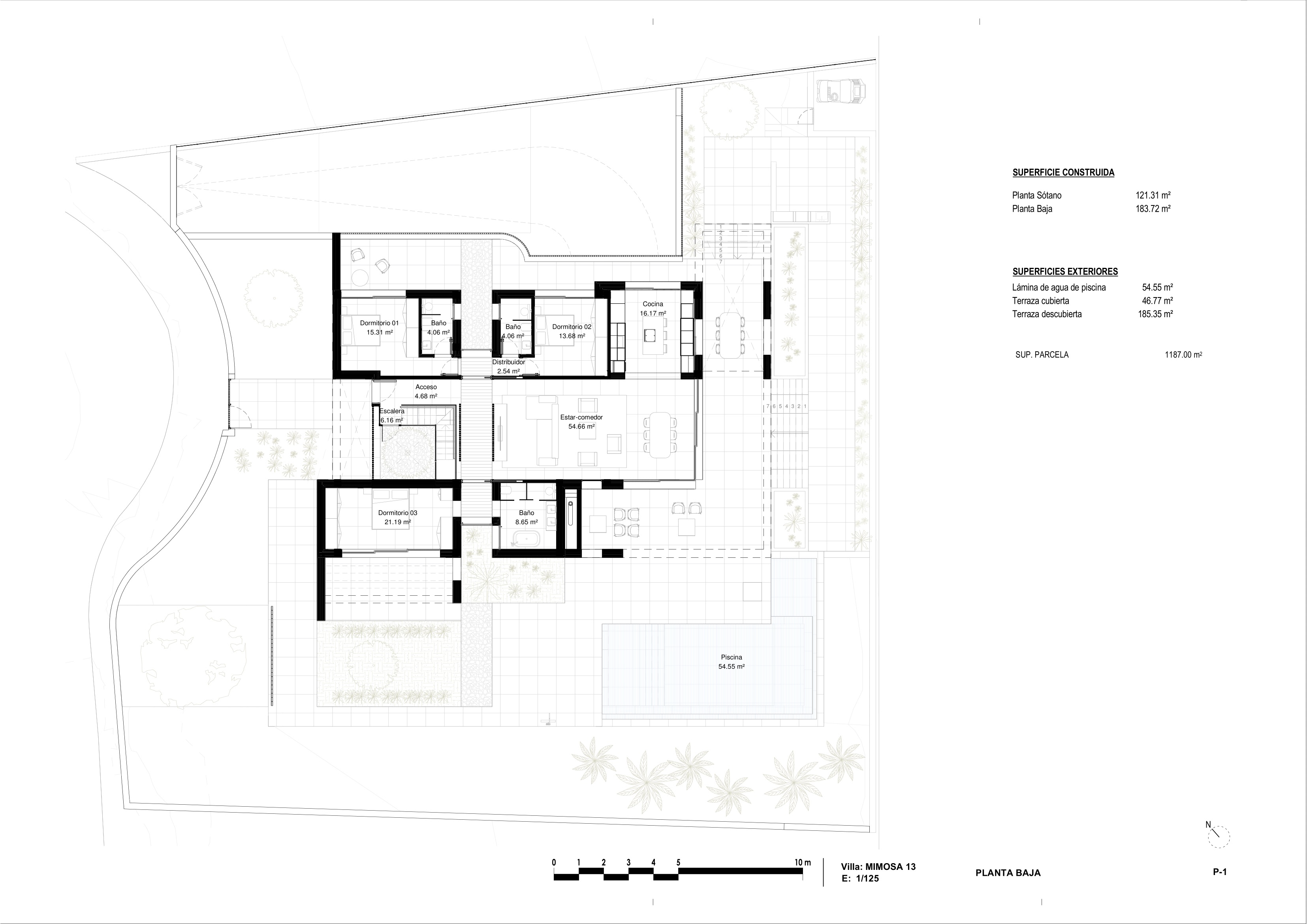
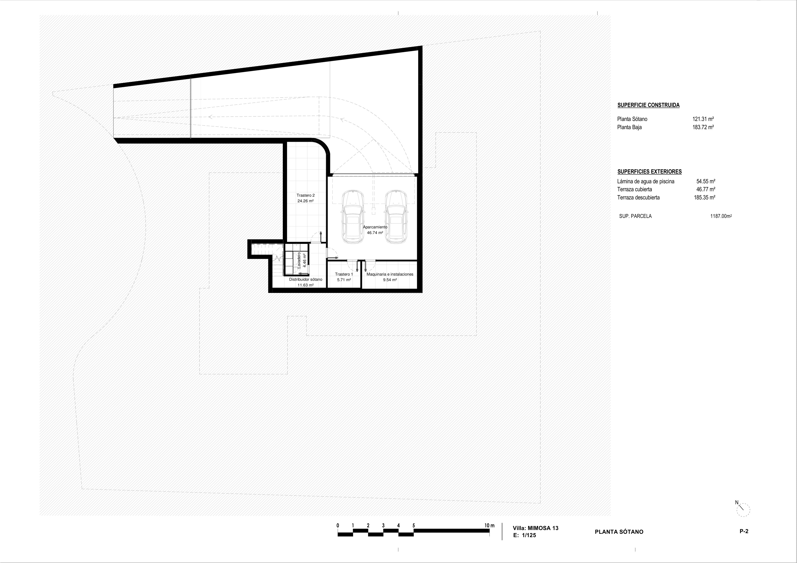
Beschrijving
Gelegen in het charmante stadje Orihuela, biedt deze exclusieve villa een unieke woonervaring. Ontworpen voor degenen die comfort en moderniteit zoeken, valt het pand op door zijn eigentijdse architectuur en hoogwaardige afwerking. Met een ontwerp dat het natuurlijke licht maximaliseert, is elke ruimte zorgvuldig gepland om maximaal comfort en functionaliteit te bieden. De villa beschikt over drie slaapkamers en drie badkamers, wat voldoende ruimte biedt voor gezinnen of degenen die graag gasten ontvangen. De integratie van geavanceerde technologie, zoals domotica, zorgt ervoor dat elk aspect van het huis eenvoudig te bedienen is, wat een moderne en efficiënte woonervaring biedt.
BUITENRUIMTES
De buitenkant van de villa is een ware oase van rust. Het pand beschikt over een privétuin die een ideale ruimte biedt om te genieten van het mediterrane klimaat. Het privézwembad is perfect om af te koelen tijdens de warme zomerdagen, terwijl de pergola een schaduwrijke plek biedt om te ontspannen of buiten te eten. Het terras is een ander hoogtepunt, dat extra ruimte biedt voor entertainment of gewoon om te genieten van het uitzicht op de natuurlijke omgeving. De privégarage zorgt ervoor dat de toegang tot het huis comfortabel en veilig is, met voldoende ruimte voor voertuigen en extra opslag.
BINNENRUIMTES
Het interieur van de villa is ontworpen om maximaal comfort en functionaliteit te bieden. De drie slaapkamers zijn uitgerust met inbouwkasten, wat voldoende opbergruimte biedt. De drie badkamers zijn modern en functioneel ontworpen. Vloerverwarming en airconditioning zorgen ervoor dat de temperatuur in huis altijd ideaal is, ongeacht het seizoen. Elektrische rolluiken voegen een vleugje gemak toe, waardoor het eenvoudig is om licht en privacy aan te passen. Bovendien is de villa voorzien van hoogwaardige apparatuur, zodat de keuken aan alle culinaire behoeften voldoet.
Kenmerken
Locatie
De kaart toont een geschatte locatie
Door dit formulier in te dienen, gaat u akkoord met ons privacybeleid.


