
Villas Don Pedro 4 - 2 Slaapkamers High-bungalow te koop in San Javier
San Javier
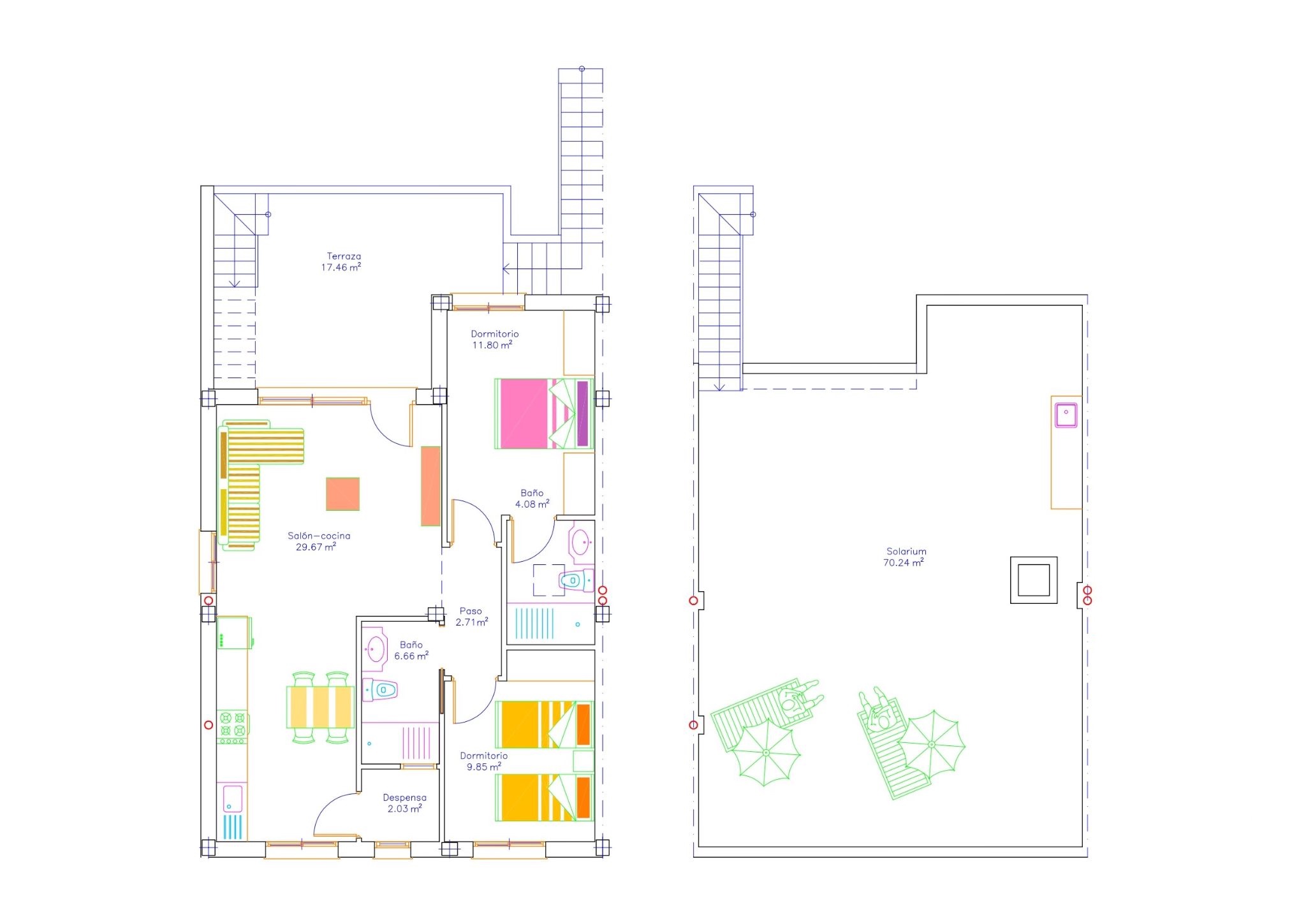
Beschikbare vloerplannen
Beschrijving
Gelegen in de charmante stad San Javier, biedt deze exclusieve collectie van 16 bungalows de perfecte combinatie van comfort en stijl. Ontworpen om te voldoen aan de behoeften van de meest veeleisende bewoners, zijn deze bungalows beschikbaar in configuraties van twee en drie slaapkamers, allemaal met twee badkamers. De locatie is ideaal voor degenen die een balans zoeken tussen rust en toegankelijkheid, met de zee op slechts 4 km en de luchthaven op 35 km afstand, wat zowel weekenduitstapjes als internationale reizen vergemakkelijkt. Elke bungalow is ontworpen met functionaliteit en comfort in gedachten, zodat elke ruimte optimaal wordt benut.
BUITENRUIMTES
De buitenruimtes van deze bungalows in San Javier zijn ontworpen om het mediterrane klimaat het hele jaar door te genieten. Elke woning heeft een privétuin, perfect om een persoonlijke oase van rust te creëren of om buitenmomenten met vrienden en familie te genieten. Bovendien bieden de terrassen extra ruimte om te ontspannen, zonnebaden of buiten te dineren. De aanwezigheid van een solarium in elke bungalow biedt een ideale plek om te genieten van het uitzicht en het zonnige weer, en wordt een veelzijdige ruimte voor diverse buitenactiviteiten.
BINNENRUIMTES
Het interieur van de bungalows is ontworpen met een focus op kwaliteit en comfort. De vloeren van porseleinen tegels geven een vleugje elegantie en zijn gemakkelijk te onderhouden, ideaal voor de moderne levensstijl. De keuken is uitgerust met apparatuur, wat het dagelijks leven vanaf dag één vergemakkelijkt. Ingebouwde kasten in de slaapkamers bieden veel opbergruimte, waardoor orde en organisatie behouden blijven. Bovendien zorgt de voorinstallatie van airconditioning ervoor dat het huis koel blijft tijdens de warmere maanden, wat op elk moment een comfortabele omgeving biedt.
GEMEENSCHAPPELIJKE RUIMTES
De gemeenschappelijke ruimtes van deze residentie in San Javier zijn ontworpen om een gevoel van gemeenschap te bevorderen en recreatieruimtes te bieden voor alle bewoners. De gemeenschappelijke tuinen zijn perfect om te wandelen of gewoon te ontspannen in een verzorgde groene omgeving. Het gemeenschappelijke zwembad is een ideale ontmoetingsplaats om af te koelen tijdens de warme zomerdagen, en biedt een veilige en aangename plek waar zowel volwassenen als kinderen kunnen genieten van het water en de zon.
Kenmerken
Locatie
De kaart toont een geschatte locatie
Door dit formulier in te dienen, gaat u akkoord met ons privacybeleid.
Andere beschikbare units in dit project
1 eenheid


