
Marella Garden - 3 Slaapkamers High-bungalow te koop in Ciudad Quesada
Ciudad Quesada
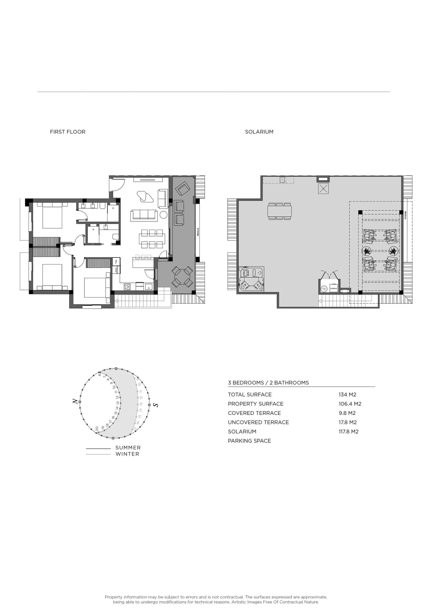
Beschikbare vloerplannen
Beschrijving
Gelegen in het charmante Ciudad Quesada, biedt dit wooncomplex een selectie van 20 woningen die zijn ontworpen om te voldoen aan de behoeften van degenen die op zoek zijn naar een comfortabel en modern huis. De opties omvatten high-bungalows en low-bungalows, elk zorgvuldig ontworpen om comfort en functionaliteit te maximaliseren. Met eigentijdse architectuur en doordachte details zijn deze woningen ideaal voor gezinnen of koppels die willen genieten van een rustige en goed verbonden omgeving. De locatie in Ciudad Quesada biedt gemakkelijke toegang tot lokale diensten, wat dit wooncomplex tot een aantrekkelijke optie maakt voor degenen die op zoek zijn naar levenskwaliteit in een bevoorrechte omgeving.
BUITENRUIMTES
De buitenruimtes van deze woningen zijn ontworpen om een buitenleefruimte te bieden die het interieur van de woningen aanvult. Elke woning heeft een privétuin, perfect om te genieten van het mediterrane klimaat. Bovendien bieden de terrassen extra ruimte om te ontspannen of gasten te vermaken. De opname van een solarium in de woningen maakt het mogelijk om te genieten van panoramische uitzichten en optimaal gebruik te maken van de zon het hele jaar door. De pergola is een extra element dat schaduw en stijl biedt, en een uitnodigende sfeer creëert om buiten te genieten.
BINNENRUIMTES
Het interieur van de woningen is ontworpen om comfort en functionaliteit te bieden. Elke woning heeft 3 slaapkamers, wat voldoende ruimte biedt voor gezinnen van verschillende groottes. De badkamers, beschikbaar in opties met 2 of 3, zijn uitgerust met moderne afwerkingen. De keukens zijn volledig uitgerust met apparaten, wat het dagelijks leven vergemakkelijkt. Ingebouwde kasten in de slaapkamers bieden efficiënte opslag en houden de ruimte netjes en rommelvrij. Bovendien bevatten sommige woningen een jacuzzi, wat een vleugje luxe en ontspanning aan het huis toevoegt.
GEMEENSCHAPPELIJKE RUIMTES
Het wooncomplex beschikt over een verscheidenheid aan gemeenschappelijke ruimtes die de woonervaring van de bewoners verrijken. De aangelegde gebieden zijn zorgvuldig onderhouden en bieden een groene en ontspannende omgeving. Het gemeenschappelijke zwembad is een ideale plek om te verfrissen en te socializen met de buren. Voor de kleintjes biedt de speeltuin een veilige en leuke plek om te spelen. Bovendien zorgt de gemeenschappelijke garage ervoor dat de voertuigen altijd beschermd en toegankelijk zijn. Deze faciliteiten zijn ontworpen om een gemeenschapsgevoel te bevorderen en comfort te bieden aan alle bewoners.
Kenmerken
Locatie
De kaart toont een geschatte locatie
Door dit formulier in te dienen, gaat u akkoord met ons privacybeleid.
Andere beschikbare units in dit project
2 eenheden beschikbaar

Bungalow (garden) in Ciudad Quesada
€ 412.100

Bungalow (solarium) in Ciudad Quesada
€ 414.000


