
Residencial Los Balcones de Calpe - 1 Slaapkamers Penthouse te koop in Calpe
Calpe
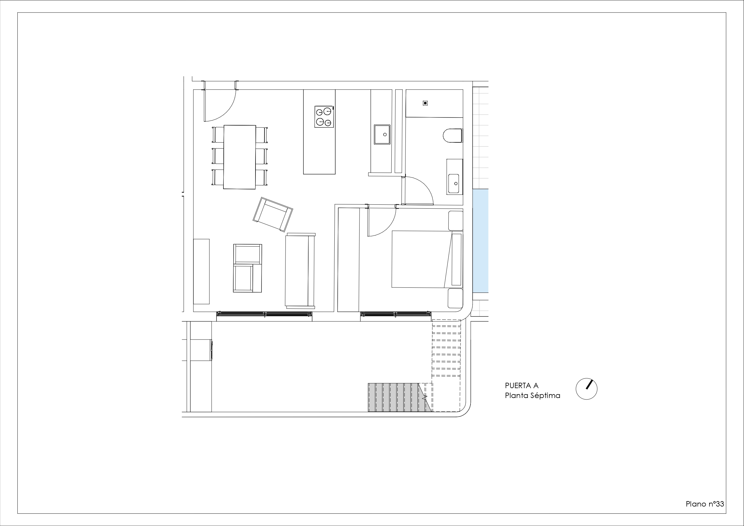
Beschikbare vloerplannen
Beschrijving
Gelegen in de prachtige plaats Calpe, biedt deze residentie een selectie van 38 eigendommen, waaronder appartementen, begane grond en penthouses. Ontworpen voor degenen die een exclusieve levensstijl zoeken, is elke woning zorgvuldig gepland om comfort en functionaliteit te maximaliseren. De nabijheid van de zee, op slechts 1 km afstand, biedt uitzicht op zee vanuit veel van de woningen, wat zorgt voor een omgeving van sereniteit en natuurlijke schoonheid. De indelingsopties omvatten woningen met 1, 2 en 3 slaapkamers, met 1 of 2 badkamers, die zich aanpassen aan diverse gezins- en persoonlijke behoeften. Deze residentie is ideaal voor degenen die de nabijheid van de zee waarderen en willen genieten van een bevoorrechte omgeving aan de Costa Blanca.
BUITENRUIMTES
De buitenruimtes van deze woningen zijn ontworpen om maximaal te genieten van het mediterrane klimaat. Veel van de eigendommen hebben terrassen, perfect om buiten te ontspannen en van het uitzicht op zee te genieten. Bovendien beschikken sommige woningen over een privé solarium, wat extra ruimte biedt voor recreatie en ontspanning. De optie van een privézwembad in bepaalde typen voegt een vleugje exclusiviteit toe, waardoor u kunt genieten van een verfrissende duik in de privacy van uw eigen huis. De ligging op slechts 1 km van de zee maakt het gemakkelijk om toegang te krijgen tot de stranden van Calpe, bekend om hun fijne zand en kristalhelder water, ideaal voor watersporten en wandelingen langs de zee.
BINNENRUIMTES
Het interieur van de woningen is ontworpen om een gezellige en functionele ruimte te bieden. De keramische vloeren geven een moderne uitstraling en zijn gemakkelijk te onderhouden, terwijl de ingebouwde apparaten dagelijks comfort garanderen. Ingebouwde kasten zorgen voor efficiënte opslag, waardoor de beschikbare ruimte optimaal wordt benut. De indeling van de woningen, met opties van 1 tot 3 slaapkamers en 1 of 2 badkamers, maakt het mogelijk om aan verschillende levensstijlen aan te passen, of het nu voor koppels, gezinnen of als tweede verblijf is. Elk detail is doordacht om een comfortabele en moderne woning te bieden, waar de levenskwaliteit prioriteit heeft.
GEMEENSCHAPPELIJKE RUIMTES
De gemeenschappelijke ruimtes van de residentie zijn ontworpen om de levensstijl van de bewoners aan te vullen. Een gemeenschappelijk zwembad biedt een ruimte voor ontspanning en socialisatie, ideaal om van het mooie weer te genieten in gezelschap van vrienden en buren. Bovendien is het gemeenschappelijke solarium perfect om te zonnebaden en te genieten van het panoramische uitzicht op de omgeving. Deze faciliteiten bieden een toegevoegde waarde aan de woonervaring en bevorderen een sfeer van gemeenschap en welzijn.
Kenmerken
Locatie
De kaart toont een geschatte locatie
Door dit formulier in te dienen, gaat u akkoord met ons privacybeleid.
Andere beschikbare units in dit project
8 eenheden beschikbaar

Groundfloor in Calpe
€ 341.095

Apartment in Calpe
€ 379.445

Apartment in Calpe
€ 430.715

Penthouse in Calpe
€ 567.685

Penthouse in Calpe
€ 423.470

Apartment in Calpe
€ 633.120

Penthouse in Calpe
€ 922.125

Penthouse in Calpe
€ 892.125


