
Luisa Residencial - 3 Slaapkamers High-bungalow te koop in Ciudad Quesada
Ciudad Quesada
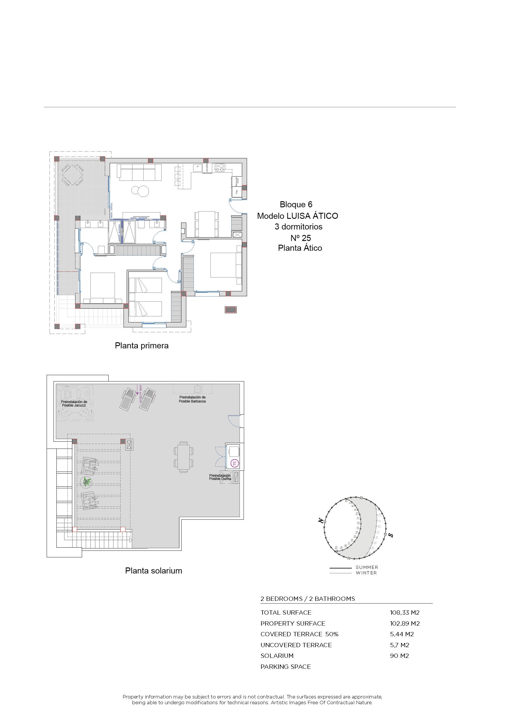
Beschikbare vloerplannen
Beschrijving
Gelegen in het charmante Ciudad Quesada, biedt deze exclusieve collectie van 19 bungalows een perfecte combinatie van comfort en stijl. Met opties voor high-bungalow en low-bungalow is elke woning ontworpen om aan moderne behoeften te voldoen en biedt het een gezellige en functionele ruimte. De locatie is ideaal voor degenen die een rustige omgeving zoeken zonder afstand te doen van de nabijheid van essentiële diensten. Slechts 39 km van de luchthaven, zijn deze woningen perfect voor zowel permanente bewoning als vakantie-uitstapjes.
BUITENRUIMTES
De buitenruimtes van deze bungalows zijn ontworpen om optimaal te genieten van het mediterrane klimaat. Elke woning heeft een privétuin, perfect om te ontspannen of voor buitenactiviteiten. De terrassen bieden extra ruimte voor entertainment of gewoon om van het uitzicht te genieten. Bovendien biedt een solarium een ideale plek om in volledige privacy van de zon te genieten. De toevoeging van een pergola voegt elegantie en functionaliteit toe, waardoor het mogelijk is om op elk moment van de dag van de buitenruimte te genieten.
BINNENRUIMTES
Het interieur van de bungalows is zorgvuldig ontworpen om comfort en stijl te bieden. Met twee slaapkamers en twee badkamers is elke ruimte geoptimaliseerd voor comfort. De vloeren van porseleinen tegels geven een moderne uitstraling en zijn gemakkelijk te onderhouden. Elektrische rolluiken en ingebouwde kasten zijn standaardkenmerken die de functionaliteit van het huis verbeteren. Bovendien zorgt de voorinstallatie van airconditioning ervoor dat het binnenklimaat altijd aangenaam is. De indeling omvat een garage, die een veilige plek voor het voertuig biedt.
GEMEENSCHAPPELIJKE RUIMTES
De gemeenschappelijke ruimtes van deze residentie zijn ontworpen voor het plezier van alle bewoners. Goed onderhouden tuinen bieden een groene en ontspannende omgeving, ideaal voor wandelingen of rustmomenten. Het gemeenschappelijke zwembad is een perfecte ontmoetingsplaats om te socializen of gewoon om af te koelen tijdens warme zomerdagen.
Kenmerken
Locatie
De kaart toont een geschatte locatie
Door dit formulier in te dienen, gaat u akkoord met ons privacybeleid.
Andere beschikbare units in dit project
6 eenheden beschikbaar

Bungalow (garden) in Ciudad Quesada
€ 314.000

Bungalow (garden) in Ciudad Quesada
€ 326.000

Bungalow (solarium) in Ciudad Quesada
€ 310.000

Bungalow (garden) in Ciudad Quesada
€ 383.500

Bungalow (garden) in Ciudad Quesada
€ 330.000

Bungalow (solarium) in Ciudad Quesada
€ 329.000


