
Perla del Mar - 2 Спальни Пентхаус на продажу в Orihuela Costa
Orihuela Costa
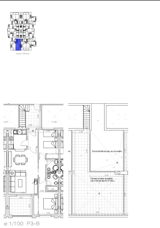
Доступные Планировки
Описание
Расположенный в очаровательном городе Орихэла, этот жилой комплекс предлагает разнообразные варианты жилья, которые подходят для различных нужд и стилей жизни. С общим количеством 27 единиц, будущие жители могут выбрать из апартаментов, квартир на первом этаже и пентхаусов, каждый из которых спроектирован для обеспечения комфорта и функциональности. Близость к морю, всего в 2 километрах, добавляет особую привлекательность, позволяя наслаждаться морским бризом и прибрежной атмосферой в любое время. Жилье оснащено современной техникой и встроенными шкафами, обеспечивая готовность каждого пространства к заселению с полным комфортом. Кроме того, предлагается возможность наличия парковочного места, что добавляет дополнительный уровень удобства для жителей, которым это необходимо.
ВНЕШНИЕ ЗОНЫ
Внешняя среда этого жилого комплекса в Орихэле тщательно спроектирована, чтобы дополнить природную красоту района. Жилье имеет частные сады, идеально подходящие для отдыха на свежем воздухе в спокойной и безопасной обстановке. Террасы, присутствующие в каждой единице, предлагают дополнительное пространство для отдыха или общения с друзьями и семьей, в то время как пентхаусы имеют солярий, предоставляя идеальное место для загара и наслаждения панорамными видами. Близость к морю, всего в 2 километрах, позволяет жителям легко наслаждаться прибрежными прогулками и водными видами спорта.
ВНУТРЕННИЕ ЗОНЫ
Интерьеры квартир в этом жилом комплексе в Орихэле спроектированы для максимального комфорта и функциональности. С вариантами одной или двух спален и одной или двух ванных комнат, каждая единица адаптирована к различным семейным потребностям. Апартаменты, квартиры на первом этаже и пентхаусы оснащены современной техникой, обеспечивая готовность каждого дома к заселению с первого дня. Встроенные шкафы предлагают эффективные решения для хранения, а возможность наличия гаража обеспечивает дополнительное удобство для тех, кому это необходимо. Каждая деталь тщательно продумана, чтобы предложить уютное и практичное жилое пространство.
ОБЩИЕ ЗОНЫ
Жилой комплекс имеет обширные общие зоны, которые способствуют активному и социальному образу жизни. Общественные сады предлагают зеленое пространство, где жители могут расслабиться и насладиться свежим воздухом. Общественный бассейн идеально подходит для освежения в жаркие летние дни и служит местом встречи для общения с соседями. Кроме того, общественная парковка обеспечивает всем жителям доступ к безопасному месту для их транспортных средств, улучшая повседневное удобство и безопасность.
Особенности
Расположение
На карте показано примерное местоположение
Отправляя эту форму, вы соглашаетесь с нашей политикой конфиденциальности.
Другие доступные квартиры в этом проекте
8 единиц доступно в этом развитии

Groundfloor in Orihuela Costa
€ 186.500

Apartment in Orihuela Costa
€ 187.500

Penthouse in Orihuela Costa
€ 198.500

Apartment in Orihuela Costa
€ 200.500

Apartment in Orihuela Costa
€ 142.500

Groundfloor in Orihuela Costa
€ 240.500

Penthouse in Orihuela Costa
€ 144.500

Penthouse in Orihuela
€ 144.500


